Trilocale in vendita

Busto Arsizio, Piazza Vittorio Veneto - San Michele
€ 180.000
3 locali 3 locali
116 Mq 116 Mq
2 bagni 2 bagni

Trilocale in vendita

Busto Arsizio, Piazza Vittorio Veneto - San Michele

Descrizione annuncio

SAN MICHELE

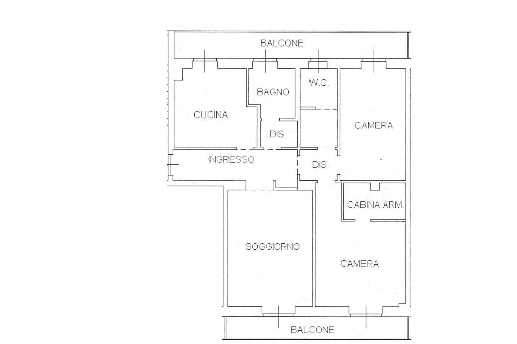
In condominio ben tenuto nelle parti comuni e posizionato in zona servita a pochi passi dal centro e dalle Ferrovie nord, proponiamo in vendita ampio trilocale sito al piano primo servito da ascensore.

Dall'ingresso si accede al corridoio che conduce al soggiorno separato dalla cucina abitabile e al bagno finestrato con doccia.

Il disimpegno indirizza alla zona dedicata al riposo in cui trovano spazio : la cameretta, la camera matrimoniale con cabina armadio e il bagno padronale con vasca. Tutti i locali affacciano su due ampi balconi.

L'appartamento è stato completamente ristrutturato negli anni ed è pronto per essere abitato.

Riscaldamento centralizzato con termovalvole, a completare la proprietà box singolo e cantina . Arredo incluso nel prezzo e aria condizionata.

Puoi contattarci anche tramite whatsapp al numero 351-5472927. Vuoi conoscere il valore reale del tuo immobile? Rivolgiti a noi per una valutazione gratuita e senza impegno. Inoltre la nostra struttura offre consulenza di mutuo GRATUITA, con tassi agevolati.

Mostra tutto

Nelle vicinanze

Trasporto pubblico Trasporto pubblico
Busto Arsizio Nord
Busto Arsizio Nord
1,1 Km
Busto Arsizio
Busto Arsizio
2,2 Km
Trasporto pubblico
100 m
Busto Arsizio - Piazza Manzoni
Busto Arsizio - Piazza Manzoni
590 m
Ricariche auto elettriche Ricariche auto elettriche
U2 Supermercato Busto Arsizio | EnelX
880 m
BeCharge Busto Arsizio Stazione FNM
1,2 Km
LIDL Busto Arsizio
1,2 Km
AGESP SERVIZI
1,4 Km
COOP Busto Arsizio
1,5 Km
Scuole Scuole
Scuola secondaria di primo grado Edmondo De Amicis
240 m
Scuola primaria Pontida
270 m
Scuola primaria Alessandro Manzoni
530 m
Scuola primaria Chicca Gallazzi
540 m
Istituto Comprensivo Statale Gian Alberto Bossi
990 m
Farmacia Farmacia
Farmacia Comunale 1
200 m
Farmacia del Corso
600 m
Farmacia Berti
630 m
Farmacia del Redentore
870 m
Farmacia Mazzini
880 m
Ospedali Ospedali
Azienda Ospedaliera Ospedale di Circolo di Busto Arsizio
1,5 Km
Pronto Soccorso Ospedale Busto Arsizio
1,6 Km
Multimedica - Clinica Santa Maria
2,9 Km
Supermercati Supermercati
Tigros
80 m
U2
860 m
Penny
950 m
Punto Simply
1,0 Km
Simply Market
1,1 Km
Negozi Negozi
Panetteria Giani
80 m
Talismano
180 m
Negozi
250 m
Primo Forno
620 m
E... buona michetta a tutti
700 m
Bar Bar
Via Vai
580 m
Ambaradam
610 m
Il Ristoro degli Angeli
650 m
Bar Adua
710 m
Baby Bar
740 m
Ristoranti Ristoranti
Trattoria La Perla
190 m
Tony pizzeria-kebab
220 m
Ciccioformaggio
300 m
Antichi Sapori
340 m
Gusto Arsizio
500 m
Mostra tutto

Caratteristiche

Rif.:
61112613
Piano:
1 di 6 con ascensore (Piano basso)
Box:
1
Balconi:
2
Camere da letto:
2
Arredamento:
Assente
Mostra tutto
Prezzo Prezzo
€ 180.000
Rata mutuo Rata mutuo
€ 827 / mese
Spese annue Spese annue
€ 1.400
Proponi il tuo prezzoProponi il tuo prezzo

Classe Energetica

Questo immobile è esente da classe energetica
Anno di costruzione:
1975
Riscaldamento:
Centralizzato
Tipo impianto:
A radiatori
Tipo alimentazione:
Metano

Ti interessa visionare l'immobile?

Fissa un appuntamento  Fissa un appuntamento

Richiedi informazioni

* Questi campi sono obbligatori

Calcola il tuo mutuo

Semplice e senza impegno
Anticipo

( % )
Mutuo

( % )

pochi semplici passi

inserisci i tuoi dati
Questionario completato
Grazie per aver richiesto un appuntamento senza impegno con un nostro Consulente del Credito e Assicurativo.

Hai inserito correttamente tutti i dati necessari e a breve riceverai una e-mail con un link da convalidare per inviare i tuoi dati.
Affiliato
Busto Case Sas
Via Meda, 11 21052 Busto Arsizio (VA)

Il nostro staff


  • Alessio Izzo
    Affiliato

  • Annamaria Iorio
    Responsabile
Via Meda, 11 21052 Busto Arsizio (VA)
Zona: Busto Arsizio
Mostra su mappa
Affiliato
Busto Case Sas
Via Meda, 11 21052 Busto Arsizio (VA)

2025 Tecnocasa Franchising S.p.A. - P. IVA 08365160152 - Via Monte Bianco 60/A 20089 Rozzano (MI). Ogni agenzia ha un proprio titolare ed è autonoma. Privacy policy | Policy utilizzo | Cookie policy